STUDIO
PROJECTS
NEWS
CONTACT
ENGLISH
ENGLISH
ESPAÑOL
×
×
×
×
×
×
×
×
×
×
PROJECT
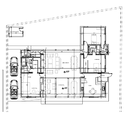
PROJECT:
Casa Leloir
TYPE OF WORK:
New project
PROJECT INFO:
House of 260m2 in 1 floor for Mari and Ari
LOCATION:
Parque Leloir
DATE:
2015
ARCHITECT:
Carla Camuffo
×
Juncal 4631 1425 Buenos Aires, Argentina
carlacam@archccway.com
(+549111) 5425-2762